Не упусти свой шанс! Последние акции от застройщиков  ▼

Продается 1-комнатная квартира, Люблинская ул., 80к5

16 700 000 Р

Перерва метро (МЦД-2) (Юго-Восточный адм. округ)

Люблинская ул., 80к5

Дата публикации: 18 февраля 2026

Дата обновления: 20 февраля 2026

Телефон: 
Показать телефон

+7 (499) 372-92-13

Агентство:  МИЭЛЬ

От застройщика: 0 квартир в продаже

Этаж: 12 / 25

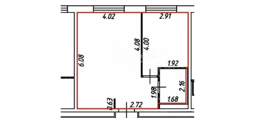
Общая: 40,7 м2

Жилая: 11,2 м2

Кухня: 24,4 м2

Комнаты: не указано

Балкон/лоджия: не указано

Лифт: есть лифт

Окна: окна во двор

Санузел: совмещенный

Мусоропровод: не указано

Состояние квартиры: хорошее состояние

Тип дома: монолитный

Год постройки: 2021

Территория: огороженная

Парковка: не указано

Статус сделки: продажа

Сделка: прямая продажа

Собственность: не указано

Основание права собственности: не указано

Описание

Код объекта: 1997104.Продается готовая для проживания просторная квартира в ЖК Люблинский парк в районе, где все необходимое рядом. Прекрасная евродвушка для комфортной жизни или сдачи в аренду! ОПИСАНИЕ КВАРТИРЫ:- изолированная комната (11,2 кв.м);- кухня-гостиная 24,4 кв.м;- дизайнерская итальянская мебель;- кухня, встроенная техника, холодильник, стиральная машина и мебель включены в стоимость;- окна выходят во двор, на восточную сторону;- совмещенный санузел. ДОМ И ДВОР:Теплый 25-этажный монолитный дом 2021 года. Четыре лифта - грузовые и пассажирские.Особенности дома:- Два выхода из дома: во двор и к дороге;- Безбарьерный вход без ступеней и пандусов; - Парковка наземная рядом с домом. В любое время суток вы найдете свободное место. ТРАНСПОРТНАЯ ДОСТУПНОСТЬ:- 12 минут пешком до станции МЦД-2 "Перерва";- 15 минут пешком до станции метро "Братиславская";- автобусная остановка в 200 м от подъезда;- 15 минут на автомобиле до МКАД. ИНФРАСТРУКТУРА РЯДОМ:- в пешей доступности школа, детский сад;- продуктовые магазины: Мираторг, Пятерочка, Вкусвилл и прочие;- аптеки и прочие сервисы, необходимые для современной комфортной жизни;- различные оборудованные детские площадки;- рядом с подъездом зона, оборудованная уличными тренажерами;- рядом усадьба Люблино, скверы и парки. УСЛОВИЯ ПРОДАЖИ:Два взрослых собственника в Москве, будут присутствовать на сделке. Квартира без обременений. Полная стоимость в договоре. В квартире никто не прописан. Готовы к быстрому выходу на сделку. Свободная продажа. ПРЕИМУЩЕСТВА МИЭЛЬ:По запросу МИЭЛЬ выдаёт покупателю Правовой сертификат или полный Юридический отчет о проверке данной квартиры и собственников, а также помогает в оформлении Титульного страхования или ипотеки. Звоните, расскажу подробности и организую просмотр!

Квартира на карте

ПанорамыКарта
Спецпредложения
Добавить объявление